


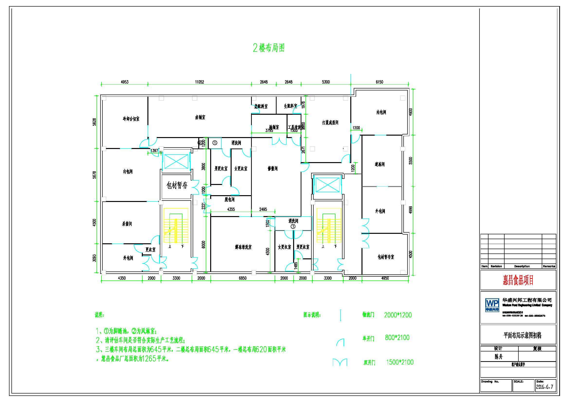
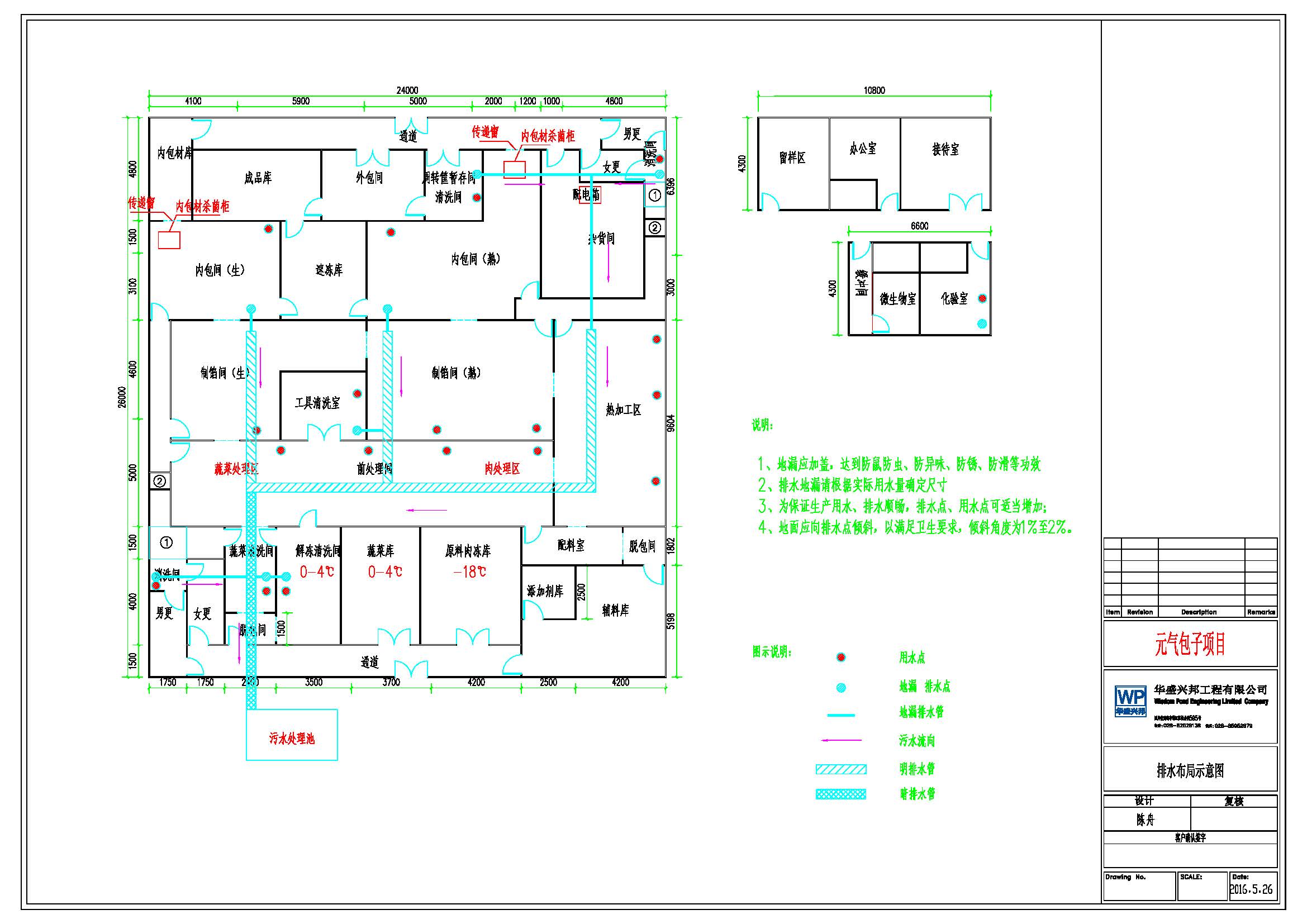
厂区布局平面图示例
车间布局应遵循的四个原则:
安全管理规范化;生产流程合理化;

工业厂房装修设计规范 食品生产许可证审查细则
食品审查通则 GB14881 中华人民共和国消防法
厂区布局设计要求

厂区布置需有系统观点,兼顾各方面要求,合理布局精心安排,讲究整体效果。应遵循以下三条原则:
1.工艺原则
厂区布置首先应该满足生产工艺过程的要求,即全厂的工艺流程要顺畅,从上工序转到下工序,运输距离要短直,尽可能避免迂回和往返运输。
2.经济原则
生产过程是一个有机整体,只有在各部门的配合下才能顺利进行,其中,基本生产过程(产品加工过程)是主体,与它有密切联系的生产部门要尽可能与它靠拢,如辅助生产车间和服务部门应该围绕基本生产车间安排。在满足工艺要求前提下,寻求最小运输量的布置方案,还要求能充分利用土地面积。
3. 安全和环保原则
厂区布置还要有利于安全生产,有利于职工的身心健康,如易燃易爆物品库应远离人群密集区,并有安全防范措施,有足够的消防安全设施,各生产部门的布置要符合环保要求,还要有三废处理措施等等。
仓库布局设计

1. 布置必须安全,做到没有死角,防止发生碰撞事故,重视员工的安全。
2. 统一建筑物、工作物、设备、机械等的排列方向,不要各行其是,使排列发生混乱。
3. 物料流动要简单,不要造成交错流动和多次往返流动。
4. 便于建筑物、工作设施、设备、机械等的维修和管理,要在不移动别的设备情况下,留有充裕的空间位置进行维修和管理。
5. 仓库布局不要给其他企业、部门增添麻烦,不要与邻近企业发生纠葛,注意卡车等车辆的进出路线,以及与此有关的环境问题。
6. 仓库布局必须预计到将来的发展的扩建,避免在扩建时产生物流的混乱,以及把各种固定设备的方向搞乱。
7. 对客户和货主必须提供方便,应当避免只考虑对本企业有利的布局,要充分考虑客户及货主的方便。
8. 能够充分利用仓库容量,所谓仓库容量,就是仓库的面积或容积,即容纳货物的能力,要求仓库容量不会产生浪费,如果设备布置失误,就会在考虑不周的地方产生难于利用的面积或空间。

2026-02-24
2026-02-03
2026-02-02
2026-01-21
成都华盛兴邦企业管理咨询有限公司是西部地区专业的食品、医药、农产品全产业链服务单位。
总部位于四川省成都市高新区环球中心E2-1507
成都华盛兴邦企业管理咨询有限公司
联系电话:181-0821-4725 189-8085-3815
400电话: 4008-715-360
办公地址:四川省成都市高新区环球中心E2-1507